ログインIDもしくはパスワードが正しくありません。
登録は完了していません。会員登録メールをご確認ください。
※会員登録時に入力したメールアドレスです。
ご希望のカタログやCAD・BIMデータをダウンロードいただけます。
※カタログやCAD・BIMデータをダウンロードするには会員登録が必要です。
新規登録
ログイン
トイレブース
シャワーブース
サーフィスウォール
もっと詳しい条件
クリア
検索
チェックしたものをダウンロード
24 件を表示
TB-GPR_ワフードドア
PDF
DXF
TB-GPR SketchUp
SKP
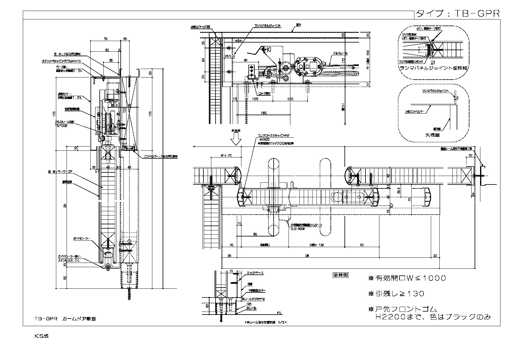
TB-GPR_カームドア_一般タイプ
TB-GPR_指挟み防止仕様_T型サポート
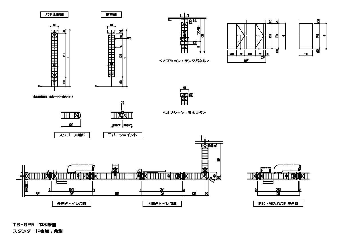
TB-GPR_巾木
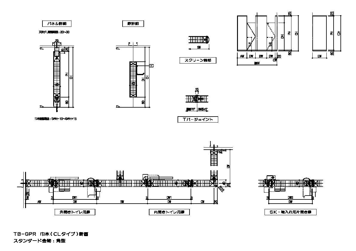
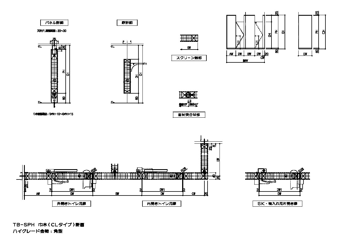
TB-GPR_CLタイプ_巾木
TB-GPR_折り戸
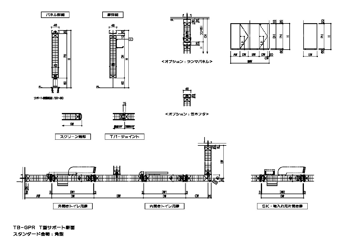
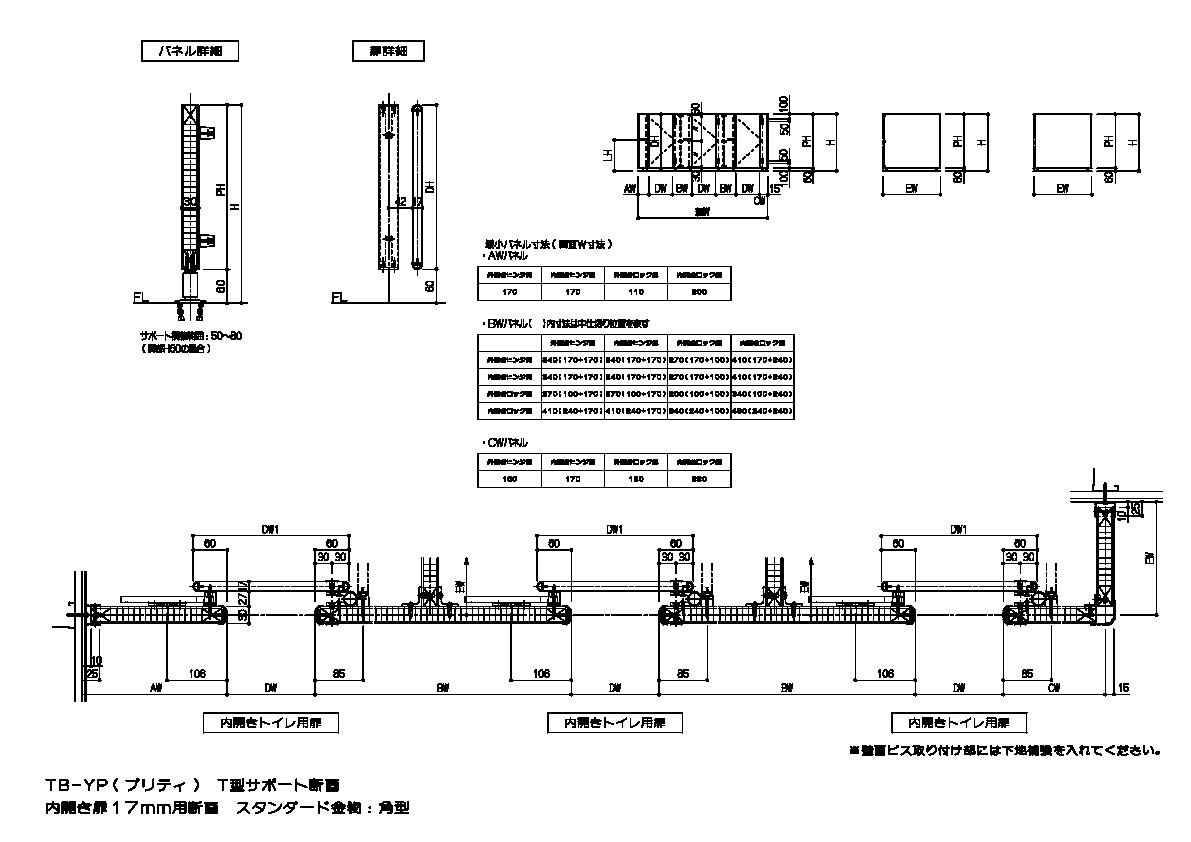
TB-GPR_T型サポート
TB-GPR_指挟み防止仕様_CLタイプ_巾木
TB-GPR Revit
RFA
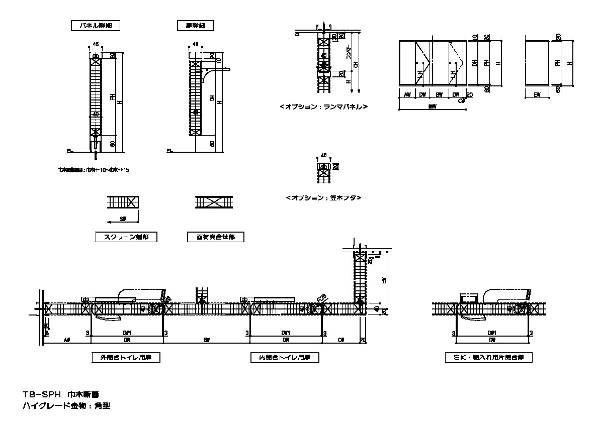
TB-SPH_巾木
TB-SPH_CLタイプ_巾木
TB-TP SketchUp
TB-TP_巾木
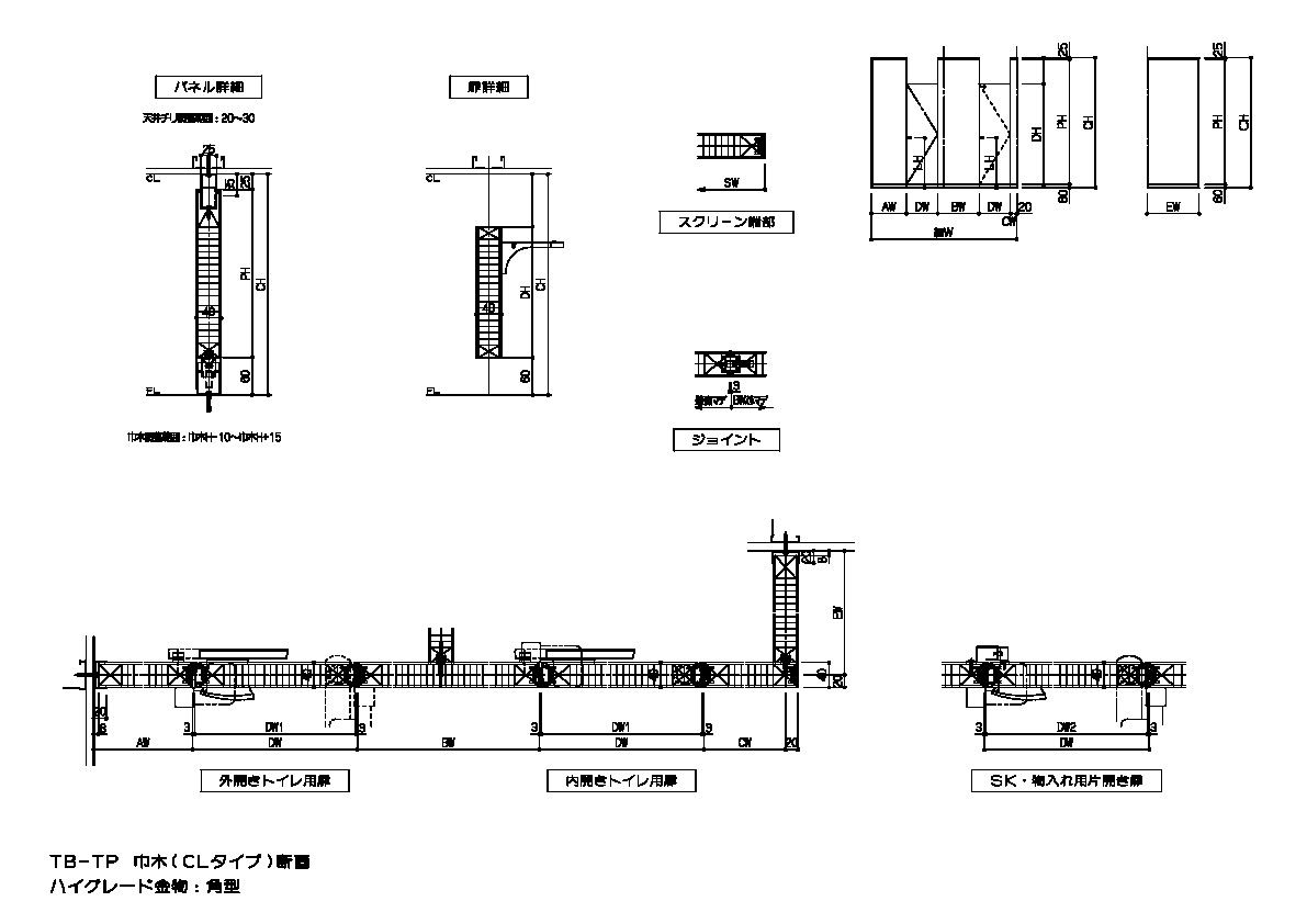
TB-TP_CLタイプ_巾木
TB-TP Revit
TB-YP_スリムタイプ_外開き_T型サポート
TB-YP_標準タイプ_内開き_T型サポート
TB-YP_スリムタイプ_内開き_T型サポート
TB-YP_標準タイプ_外開き_T型サポート
TB-YP_標準タイプ_外開き_巾木
TB-YP_標準タイプ_内開き_巾木
haremo Revit
SB-GPR_メラミンSドア仕様_T型サポート
お探しのCAD・BIMデータが見つからない場合、お手数ですがこちらへお問い合わせください。
本サイトでは利便性の向上を目的にクッキーを使用しています。 クッキーの使用に同意をいただける場合は「同意」ボタンをクリックしてください。 クッキーの設定はお客様のブラウザでいつでも変更可能です。このサイトについて