ログインIDもしくはパスワードが正しくありません。
登録は完了していません。会員登録メールをご確認ください。
※会員登録時に入力したメールアドレスです。
ご希望のカタログやCAD・BIMデータをダウンロードいただけます。
※カタログやCAD・BIMデータをダウンロードするには会員登録が必要です。
新規登録
ログイン
後付学校間仕切
先付学校間仕切
もっと詳しい条件
クリア
検索
チェックしたものをダウンロード
25 件を表示
マイティ-Lux80SP 腰パネル+両面掲示板+ランマパネル(KPX)
PDF
DXF
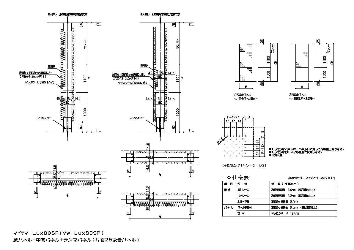
マイティ-Lux80SP 腰パネル+中間パネル+ランマパネル(片面25吸音パネル)
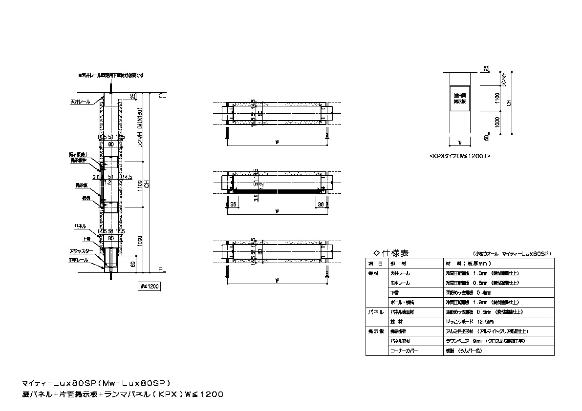
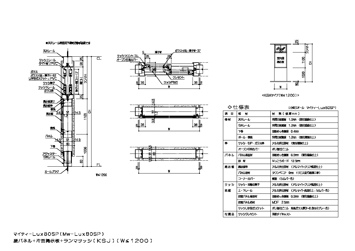
マイティ-Lux80SP 腰パネル+片面掲示板+ランマパネル(KPX)W≦1200
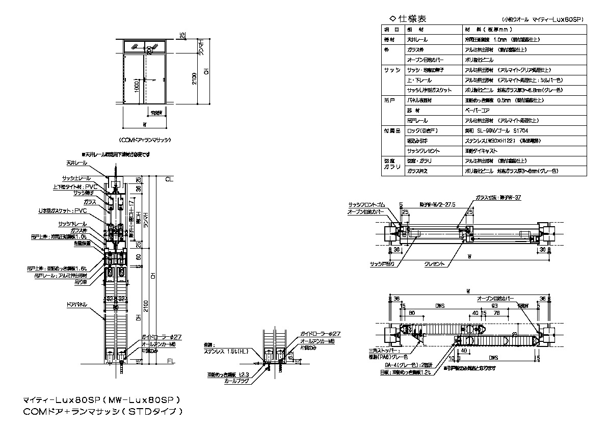
マイティ-Lux80SP COMドア+ランマサッシ
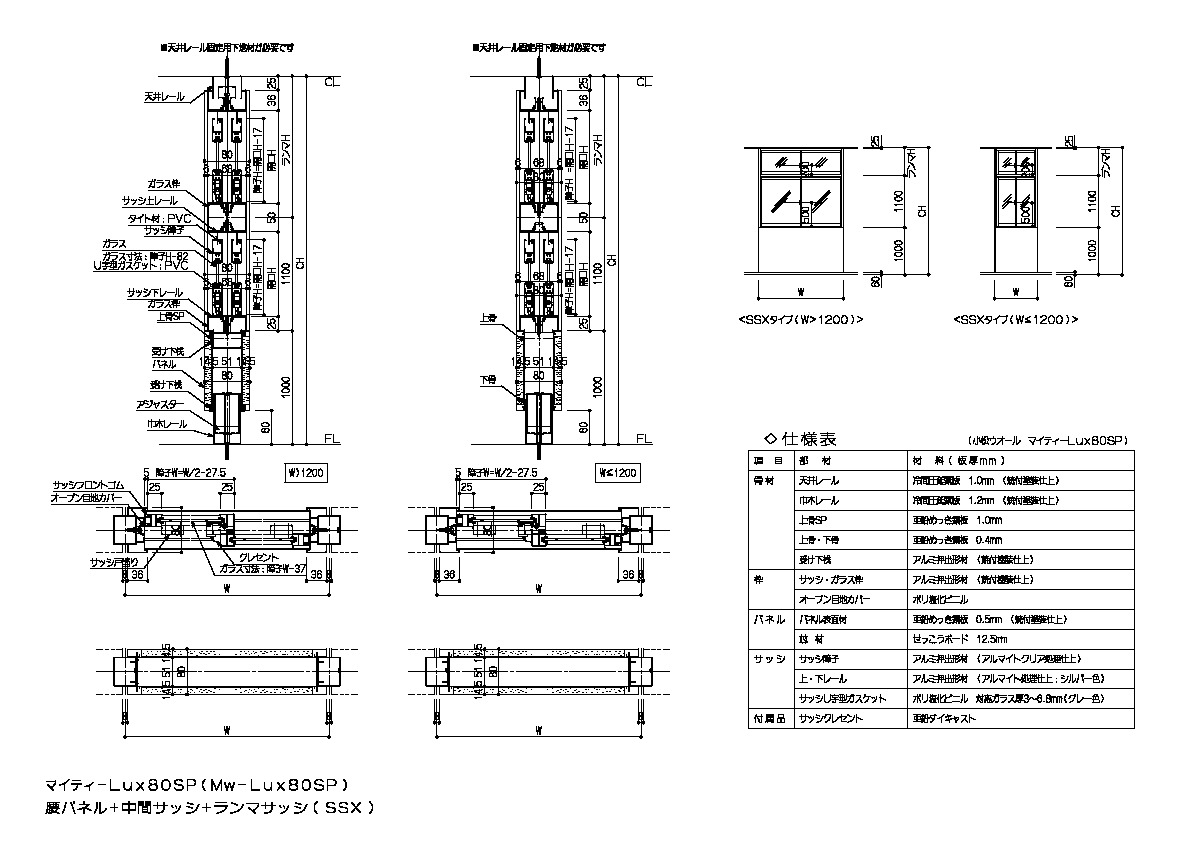
マイティ-Lux80SP 腰パネル+中間サッシ+ランマサッシ(SSX)
マイティ-Lux80SP 開き戸(片ドア・親子ドア)+ランマガラス
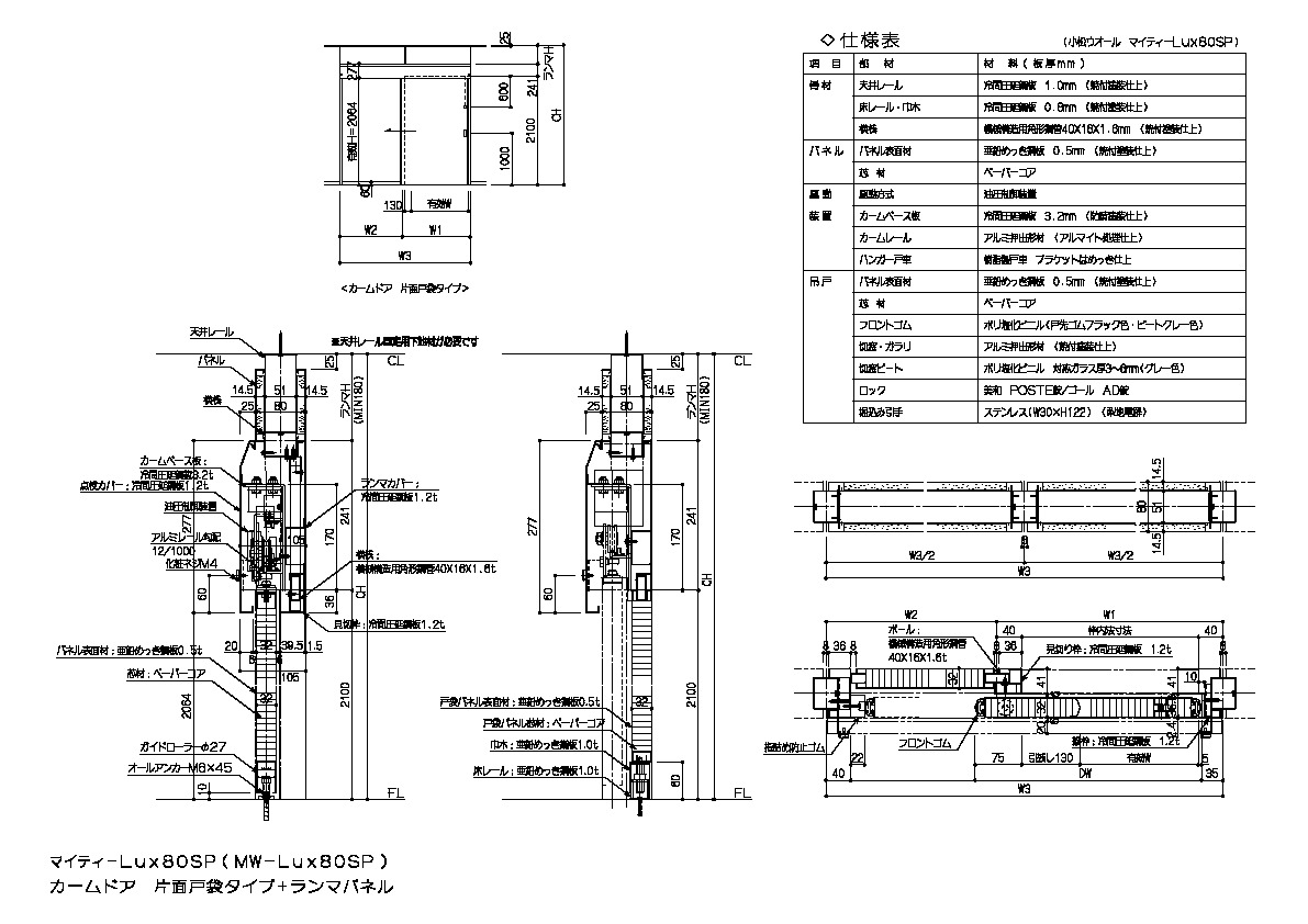
マイティ-Lux80SP カームドア 片面戸袋タイプ+ランマパネル
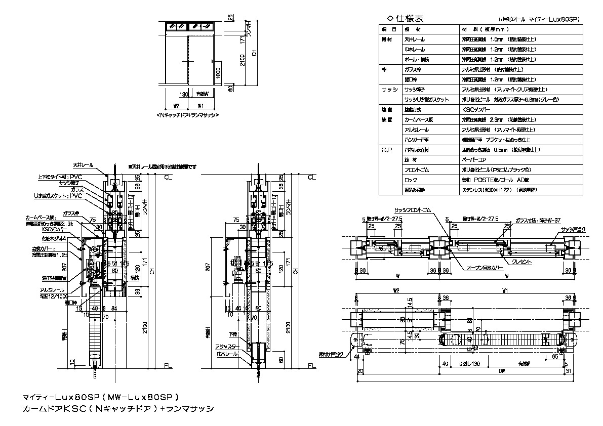
マイティ-Lux80SP カームドアKSC(Nキャッチドア)+ランマサッシ
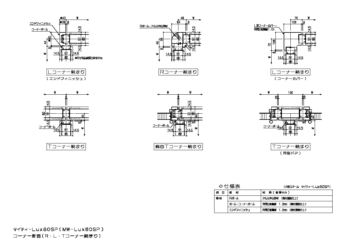
マイティ-Lux80SP コーナー断面(R・L・Tコーナー納まり)
マイティ-Lux80SP 壁面納まり(壁面カバー・壁面レール納まり)
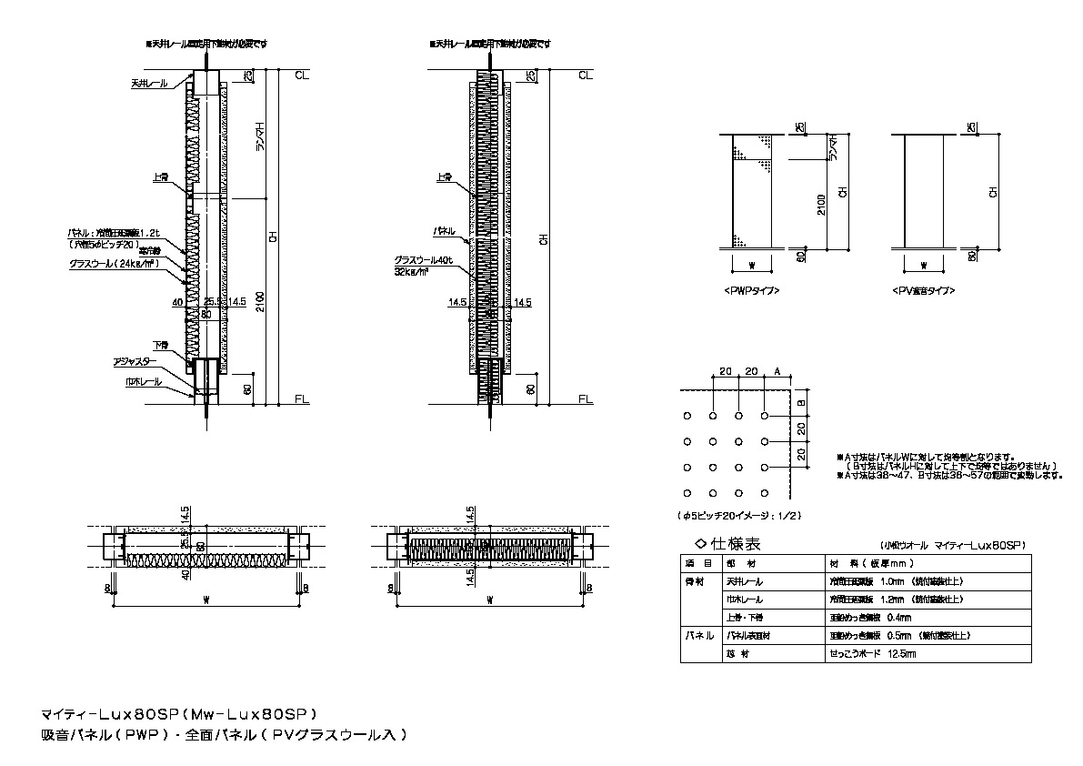
マイティ-Lux80SP 吸音パネル(PWP)・全面パネル(PVグラスウール入)
マイティ-Lux80SP 全面パネル(PV)・半パネル+ランマパネル(PW)
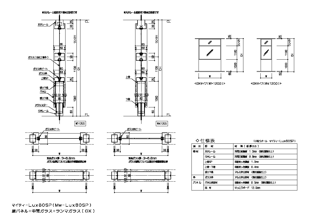
マイティ-Lux80SP 腰パネル+中間ガラス+ランマガラス(GX)
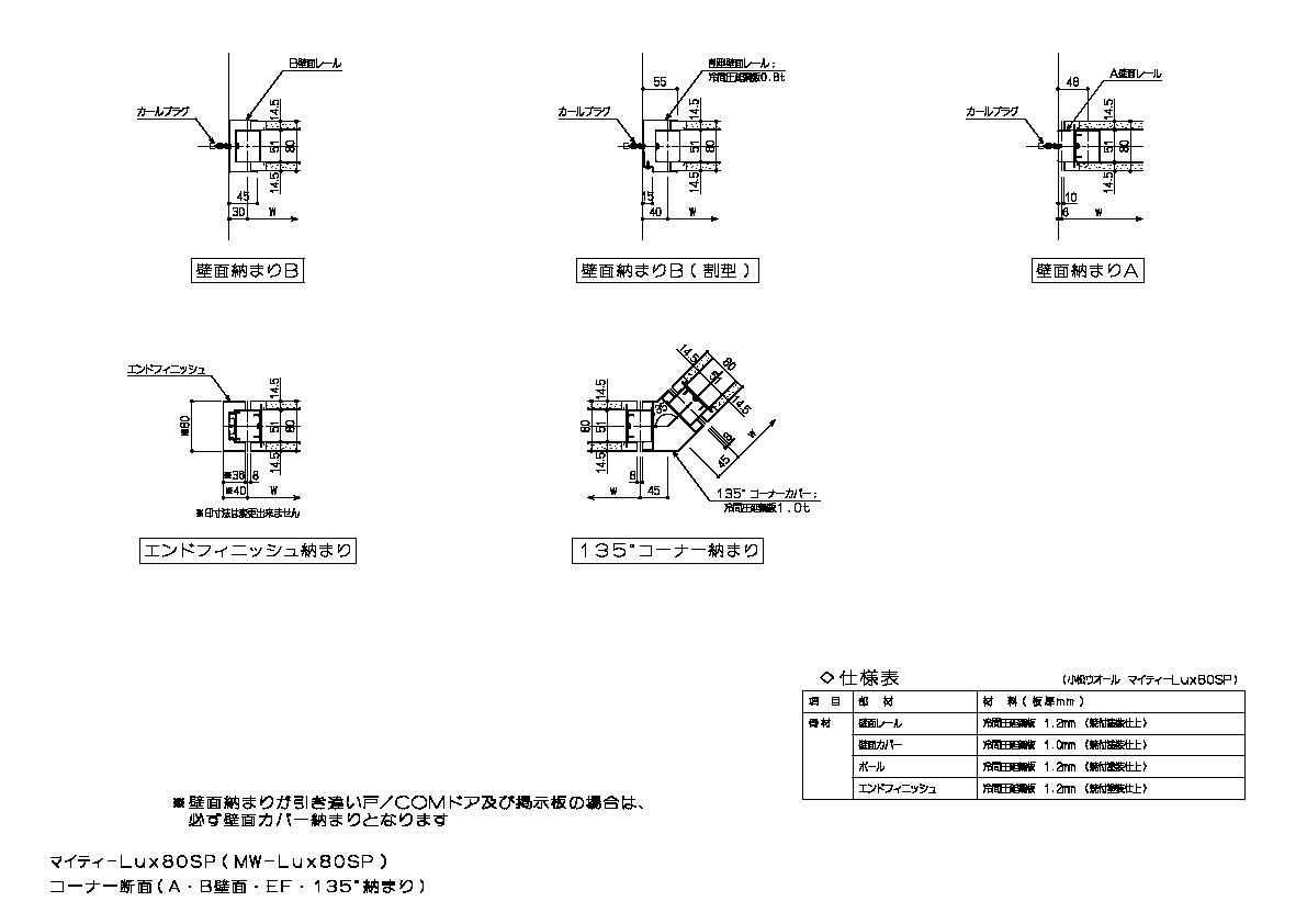
マイティ-Lux80SP コーナー断面(A・B壁面・EF・135°納まり)
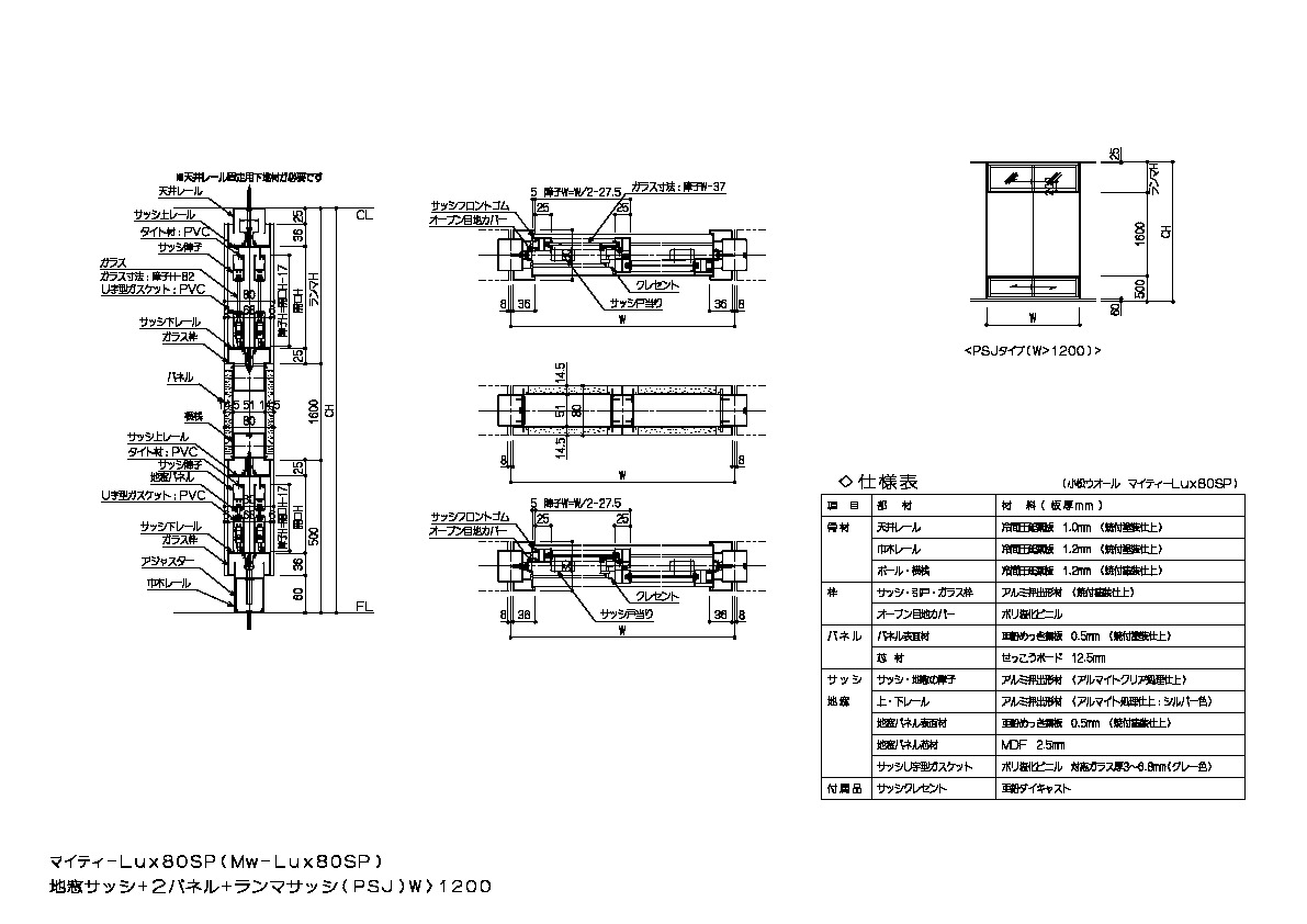
マイティ-Lux80SP 地窓サッシ+2パネル+ランマサッシ(PSJ)W>1200
マイティ-Lux80SP 腰パネル+片面掲示板+ランマサッシ(KSJ)(W>1200)
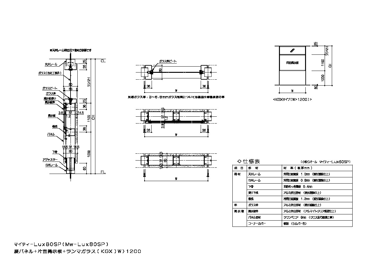
マイティ-Lux80SP 腰パネル+片面掲示板+ランマガラス(KGX)W>1200
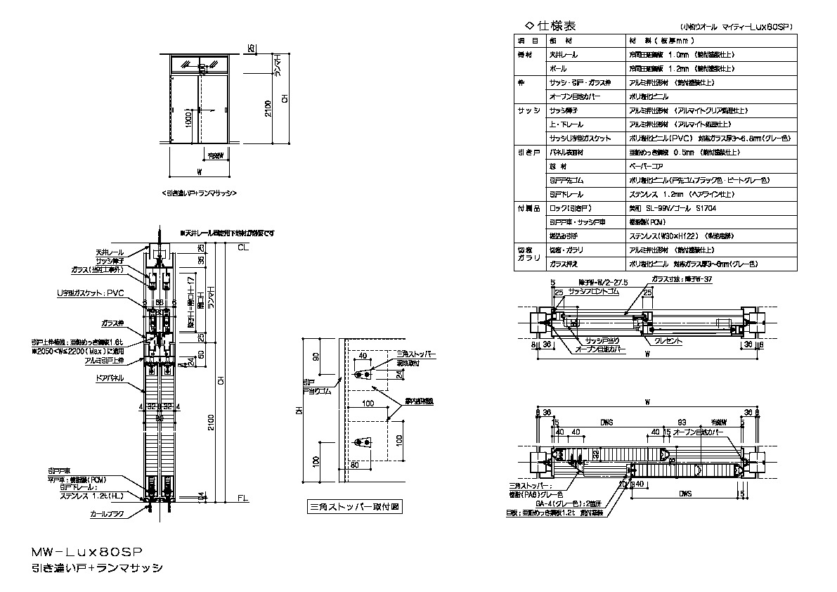
マイティ-Lux80SP 引き違い戸+ランマサッシ
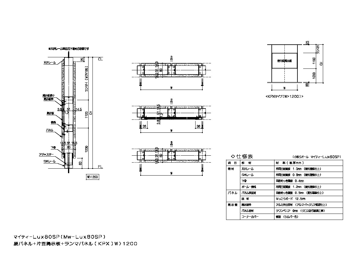
マイティ-Lux80SP 腰パネル+片面掲示板+ランマパネル(KPX)W>1200
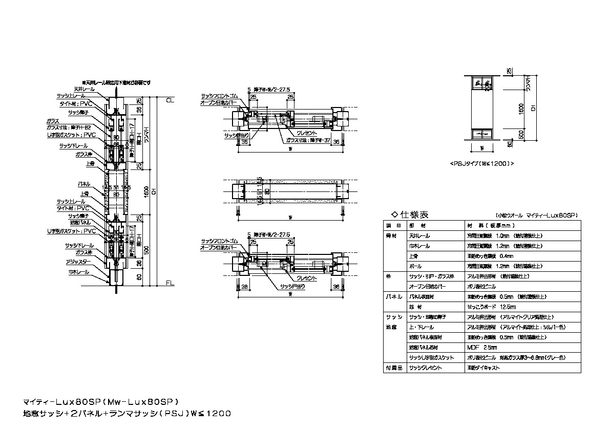
マイティ-Lux80SP 地窓サッシ+パネル+ランマサッシ(PSJ)W≦1200
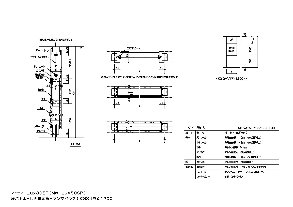
マイティ-Lux80SP 腰パネル+片面掲示板+ランマガラス(KGX)W≦1200
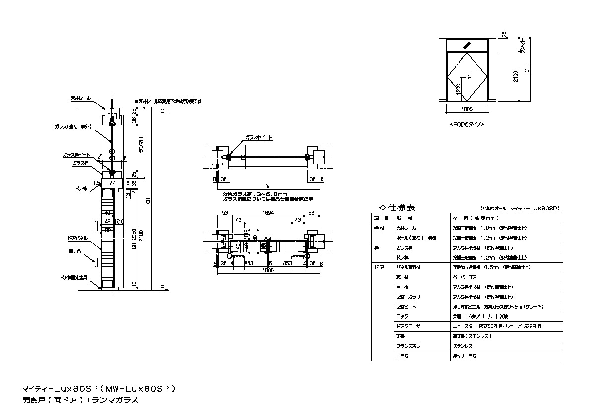
マイティ-Lux80SP 開き戸(両ドア)+ランマガラス
マイティ-Lux80SP 腰パネル+片面掲示板+ランマサッシ(KSJ)(W≦1200)
マイティ-Lux80SP オープンセサミ(MW-Lux80SP OS) Revit
RFA
マイティ-Lux80SP(MW-Lux80SP) Revit
お探しのCAD・BIMデータが見つからない場合、お手数ですがこちらへお問い合わせください。
本サイトでは利便性の向上を目的にクッキーを使用しています。 クッキーの使用に同意をいただける場合は「同意」ボタンをクリックしてください。 クッキーの設定はお客様のブラウザでいつでも変更可能です。このサイトについて